Project details
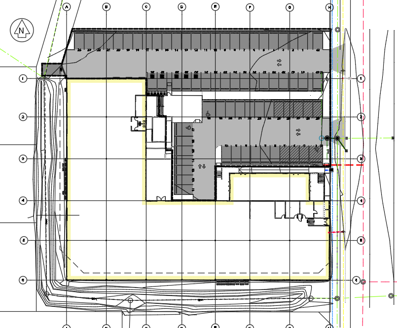
Maven have been engaged to work on the development of the new offices for Ministry of Education, based in Whangarei. This work involves drainage design of new office building and café, and earthworks and pavement design for carpark.
In addition, Maven are involved in the following three projects as part of the Ministry of Education special school satellite project; involving the construction of a satellite building which accommodates students with high needs.
Projects:
- Auckland Normal Intermediate school
- Whangaparoa College
- Glenfield Intermediate
Scope of work includes:
- Private drainage design
- Flood analysis
- Mobility access
- Pavement design
Location
24 Kaka Street, Whangarei plus various
Client
A-Line Construction for Ministry of Education
